

Engineering Services |
Want to find out which upright and which beam to use for your application. Contact Hardy to get help designing, specifying and selecting the right components to fit your logistics needs. |
Drafting Services |
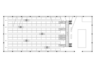
With your installation in mind Hardy can help you execute your plan. With warehouse layout and installation drawings our CAD draftsman will help you work through your needs. We can give you straight CAD design services or take your sketchs and develop a fully executed technical layout that brings your vision to fruition. Hardy works with our customers on a Project Based Model. After our initial contact we will take your initial design information. Whether it be drawings, blueprints, cad files or a simple sketch. We will then work with you to develop a required drawing list. Once we agree on cost and time, we will enter into a service agreement with the technical parameters established and go to work. Throughout the process we will deliver periodic drawings to insure that we are on target. When we complete the finished model, we will deliver the agreed upon delivery format. |
3D Visualization Services |
If you are ready to walk through your warehouse before the first upright is ordered or the first beam installed. Hardy can help. Our 3D storage design engineers can show you where you are going before you get there. With to scale, 3D models of your facility and the storage configuration and and material handling fixtures you can be sure you will get what you expected before you start! |
How We Work |
Hardy works with our customers on a Project Based Model. After our initial contact we will take your initial design information. Whether it be drawings, blueprints, cad files or a simple sketch. We will then work with you to develop a required drawing/shot list. Once we agree on cost and time, we will enter into a service agreement with the technical parameters established and go to work. Throughout the process we will deliver periodic drawings, rendered stills or animations, to insure that we are on target. When we complete the finished model, we will deliver the agreed upon delivery format. |
Phone:
|
Hardy Storage Systems sells by container loads only.
Download an order form here and email or fax it to us.
